Case Study 3: Precision CAD Design Services - Converting Client Vision Into Production-Ready Shop Drawings

Case Study 3: Precision CAD Design Services - Converting Client Vision Into Production-Ready Shop Drawings

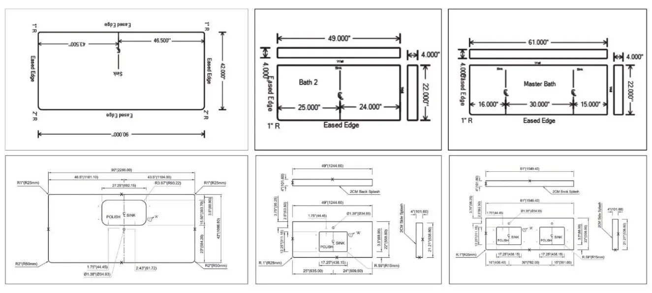
Collage of six detailed CAD shop drawings for countertops and vanities

Why Design Matters

Successful granite or quartz countertops at Oceanic6 Solutionz always begin with accurately and professionally engineered shop drawings.

Through CAD design, our team transforms client measurements, site layouts, and sink/cabinet details into exact drawings that are ready for fabrication—thus, assuring installation of the countertop that fits perfectly and eliminating the mistakes that can be quite costly.


Our Design Process
1. Understanding Client Requirements

We start by going through all the details provided by the client:

  • Cabinet layouts / templates
  • Sink model & cutout details
  • Appliance and faucet placements
  • Edge profile selection
  • Splash sizes
  • Overhang requirements

We ensure that all the details that are not mentioned or are confusing are explained before we start working.

CAD Drawing for Sanibel Kitchens with dimensions
CAD Drawing for Sanibel Baths with dimensions
CAD Drawing for Windsor Baths - Mirrored layout
2. Creating Accurate Shop Drawings

Our designers produce comprehensive shop drawings that illustrate:

  • The exact dimensions of the countertop
  • The positions and measurements of sink cutouts
  • The placements of faucet holes and accessories
  • The edge profile and corner radius
  • The sizes of the backsplash and sidesplash
  • The locations of the seams
  • Orientation markings (Front, Left, Right, Mirror)
Designer working on CAD software
3. Client Review & Approval

Drawings are provided in PDF format for a quick check and confirmation.

Clients check out the measurements, sink positions, and edge details (all details of project drawing).

If there are any changes, they are done quickly, and the work of fabrication is only started after the final approval.

Detailed CAD drawing showing Master Bath and Bath 2 for client approval
Detailed CAD drawing showing a large vanity or kitchen piece for client approval

Why Our CAD Design System Works

Our CAD design system ensures predictable, efficient, and successful project outcomes:

  • ✔ Perfect Installation Fit
    The accurate measurements lead to no need for on-site adjustments.
  • ✔ Faster Fabrication
    The Clear drawings allow smooth cutting, polishing, and CNC work.
  • ✔ Better Visual Alignment
    Seam placement, grain direction, and edge continuity create premium results.
  • ✔ No Costly Mistakes
    Design corrections at the drawing stage save material and time.
  • ✔ Saves the Client Time
    Installers are able to put each piece in a quicker way with exact instructions.

Conclusion

Our CAD design is the basis for every countertop project leading to success.

Oceanic6 Solutionz makes sure that the production is without errors and the installation is quick, easy, and exactly up to the client's wishes by concentrating on the precision, good communication, and approval through the system.

WhatsApp Icon